Der Verkauf Ihrer Immobilie
Über Mergenthaler Immobilien
Ihr Kontakt zu uns
Standort Waiblingen
Telefon: (07151) 966 58-0
Standort Fellbach
Telefon: (0711) 365 96 80-0
© Mergenthaler Immobilien AG 2026
Das Haus ist ideal für einen Nichtraucherhaushalt und einer Familie mit Kinder.
Die Haltung von Haustieren ist nicht erwünscht.
Dieses Wohnhaus ist nach Absprache kurzfristig beziehbar.
Monatliche Kosten:
€ 1.720,- Monatliche Kaltmiete Wohnhaus
€ 400,- Nebenkosten
Die Miete kann reduziert werden, wenn Eigenleistungen durch den handwerklich begabten Mieter erbracht werden:
- Fenster streichen
- Bodenbeläge im EG/2.OG/DG renovieren
- Treppengeländer montieren und Treppe belegen
- Gartenzaun erneuern.
Bestimmte Materialien bezahlt der Vermieter.
Alles nach Absprache vor Abschluß des Mietvertrags.
Energieausweis: BA, 58,1 kWh/(m2*a), Wärmepumpe/thermische Solaranlage, Energiebedarf B, Haus Bj. 1995, gültig bis 09.12.2035, Baujahr Wärmeerzeuger 2023
Erdgeschoss:
oErdgeschoß: Möglichkeit zur Abtrennung einer Einliegerwohnung mit Kochnische
und Einbau Gäste-WC in der Diele
oZwei Zimmer mit fest eingebauten Wandregalen
oBad mit Dusche, WC, WB und Badschrank, Spiegel
oFenster gesichert mit Magnetkontakt Alarm
oBewegungsmelder Carport und Haustüre
oVorgarten ca. 15 qm, eingezäunt
1. Obergeschoss:
oEinbauregale Musikzimmer
oBOSE-Anlage mit 2x2 Lautsprechern, Subwoofer, 2 Zusatzboxen
oAnschlußmöglichkeit für Kaminofen
oEinbauküche „NEGELE“ – Gasherd, Backofen, Kühlschrank, Spülmaschine Miele, Doppelspülbecken Blanco, Dunstabzug NEFF, Ober- Unterschränke, Apothekerschrank, kleiner Frühstückstisch, Regale
oTerrasse 6 x 6 m = 36 qm, davon ca. 28 qm überdacht
oBewegungsmelder Terrasse
oBlauregen Bepflanzung, Sonnensegel Maßanfertigung
2. Obergeschoss
o4 sehr geräumige Einbauschränke Dachgeschoss (3 Zimmer + Bad) je ca. 6,6 qm Ansichtsfläche und 30 bzw. 60 cm tief
oSchlafzimmer + Kinderzimmer: Nachtfreischaltung
oSchlafzimmer Doppelbett 200 x 180 mit Nachttischchen und Licht
oBad Handtuchheizkörper und Spiegel
oFanCoil „Galetti“ 3kW im Treppenhaus auch zur Kühlung im Sommer
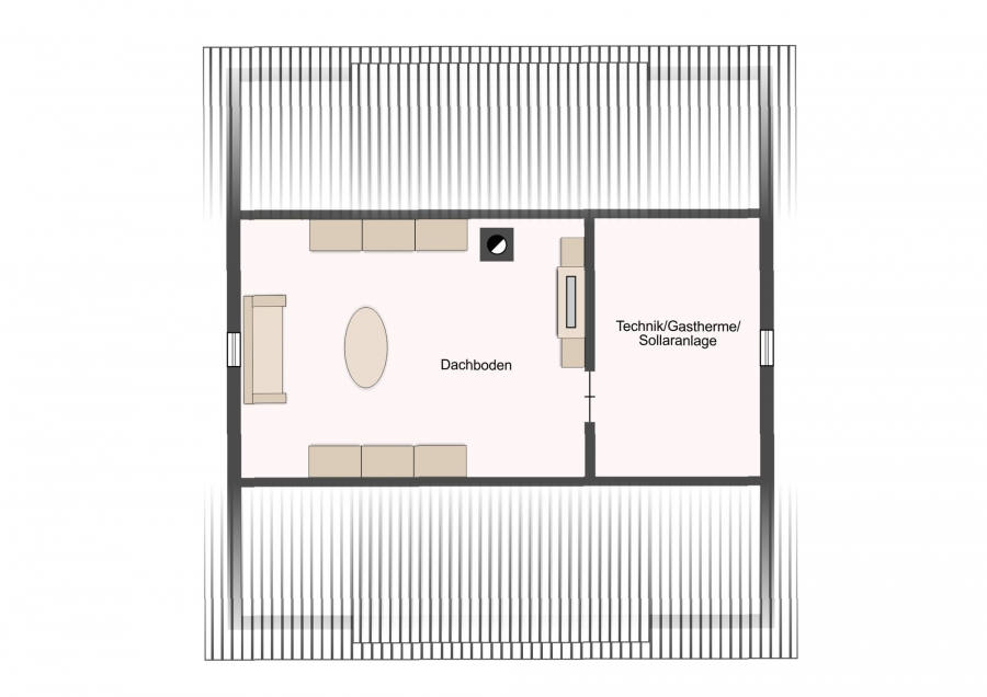
Dachgeschoss:
oDachzimmer mit Dachfenster Velux
oWandregal und 3 Unterschränke 40cm hoch unter Dachschräge
oAnschluß Fernsehantenne
oWärmepumpe / Thermische Solaranlage „Wagner“ ca. 6 qm
oWasserfilter und Druckminderer, Wasserverteilung
oSteuerung Wärmepumpe
UG:
oWaschmaschine "Miele Allwater" und Trockner
oNeff Brotbackofen mit 380V Drehstromanschluß mit CEE-Steckdose
oVorratskeller Regale / Weinregal / Schwerlastregal / Gläserregal
oLagerkeller: 6 x Schwerlastregale, 2 lose Schränke
oLagerkeller: Wisotel Glasfaseranschluß
oWerkkeller: Werkbank und Arbeitstisch, Wandregale, Leuchte
oWerkkeller: Werkzeug Grundausstattung
oWerkkeller: lose Schränke
oHausanschlußraum: Regenwassersystem (Pumpe Kärcher BP3, Armaturen, Filter)
für 2 x Toilettenspülung, Waschmaschine „Allwater“ und Gartenwasser im Hof, Gaszähler, Wasserzähler
oHausanschlußraum: 4 lose Schränke, 3 Regale
Aussenbereich:
oOffenes Carport L= ca. 7,0 m mit zweitem Stellplatz davor und Wallbox 22kW.
Zisterne 4 cbm Nutzinhalt
oHoffläche zur gemeinsamen Nutzung (Ein-/Ausladen, nicht Parken)
Gesamte Wohn- und Nutzfläche ca. 175 m²:
Wohnfläche EG:
ca. 10 m² Windfang
ca. 4 m² Bad
ca. 15 m² Zimmer Ost
ca. 15 m² Zimmer West
ca. 9 m² Flur
1. Obergeschoss:
ca. 47 m² Wohn- und Essbereich
ca. 7 m² Küche mit Zugang zur Terrasse
ca. 14 m² Terrasse (zu 37,5% angerechnet, Grundfläche ca. 36 m²)
ca. 2 m² Flur
2. Obergeschoss:
ca. 9 m² Schlafzimmer mit Einbauschrank
ca. 13 m² Kinderzimmer 1 mit Einbauschrank
ca. 13 m² Kinderzimmer 2
ca. 9 m² Bad
ca. 3 m² Flur
Dachgeschoss:
ca. 8 m² Fernsehzimmer (zu 50 % angerechnet, Grundfläche ca. 18 m²)
ca. 5 m² Haustechnik (zu 37,5 % angerechnet, Grundfläche ca. 11 m²)
Untergeschoss:
ca. 10 m² Waschküche
ca. 10 m² Vorratsraum
ca. 30 m² Lagerraum
ca. 8 m² Flur
ca. 4 m² Flur
Es liegt ein Energiebedarfsausweis vor.
Dieser ist gültig bis 9.12.2035.
Endenergiebedarf beträgt 58.10 kwh/(m²*a).
Wesentlicher Energieträger der Heizung ist Umweltwärme.
Das Baujahr des Objekts lt. Energieausweis ist 1995.
Die Energieeffizienzklasse ist B.
Eine Besichtigung ist nach Absprache in unserer Begleitung möglich. Alle genannten Angaben zum Objekt beruhen auf den Angaben der Eigentümer, für deren Richtigkeit wird keine Gewähr übernehmen können. Unser Angebot ist freibleibend und in diesem Falle nur für Sie bestimmt. Eine Weitergabe an Dritte bedarf unserer Zustimmung.
Leutenbach gilt als familienfreundlich und bietet durch seine Lage im Rems-Murr-Kreis einen hohen Freizeitwert im Grünen, während Einkaufs- und Kultureinrichtungen in den benachbarten Städten Winnenden und Backnang schnell erreichbar sind. Das Wohnen in Leutenbach bietet eine Mischung aus ländlicher Idylle und der Nähe zur Metropolregion Stuttgart.
S-Bahn:
Der Bahnhof Nellmersbach (ca. 900 m, ca. 10 min) bietet Anschluß an die Linie S3 Backnang-Winnenden-Waiblingen-Stuttgart-Flughafen/Messe. Der Bahnhof Winnenden bietet Anschluß an den Regionalexpress Schwäbisch Hall-Stuttgart.
Busverbindungen:
Mehrere Buslinien verbinden die Ortsteile Leutenbach, Nellmersbach und Weiler zum Stein mit den Bahnhöfen in Winnenden und Nellmersbach sowie umliegenden Gemeinden.
B14 (Bundesstraße 14):
Der Ortsteil Nellmersbach verfügt ebenso wie Leutenbach/Winnenden über eine je eigene Ausfahrt der vierspurig ausgebauten B14 Stuttgart-Backnang.... Fahrzeit zum Flughafen Stuttgart frühmorgens (vor Berufsverkehr) ca. 32 min.
Die dargestellte Position der Immobilie ist nur eine ungefähre Angabe.
Standort Waiblingen
Telefon: (07151) 966 58-0
Standort Fellbach
Telefon: (0711) 365 96 80-0
© Mergenthaler Immobilien AG 2026