Der Verkauf Ihrer Immobilie
Über Mergenthaler Immobilien
Ihr Kontakt zu uns
Standort Waiblingen
Telefon: (07151) 966 58-0
Standort Fellbach
Telefon: (0711) 365 96 80-0
© Mergenthaler Immobilien AG 2026
Willkommen zu einer einzigartigen Gelegenheit im charmanten Heusteigviertel! Hier, in der ehemaligen Schnapsfabrik an der Weißenburgstraße, erwartet Sie eine außergewöhnliche Wohneinheit mit Atelier, die 1994 realisiert wurde. Diese beeindruckende Immobilie kombiniert den historischen Charme eines architektonischen Kleinods mit modernem Wohnkomfort und bietet auf etwa 337 m² vielseitige Nutzungsmöglichkeiten.
Stellen Sie sich vor, wie Sie Ihr Leben und Arbeiten harmonisch unter einem Dach vereinen können. Die Maisonette ähnliche Aufteilung bietet großzügige Wohnflächen, die sich flexibel gestalten lassen um sowohl privaten Rückzugsraum als auch eine inspirierende Arbeitsumgebung zu schaffe. Der Zugang zum Areal erfolgt bequem über den Hauseingang oder durch ein Tor.
Tauchen Sie ein in die lichtdurchfluteten Räume des Erdgeschosses, die mit hochwertigem Parkett ausgelegt sind und zahlreiche Gestaltungsmöglichkeiten bieten. Von einem großzügigen Wohn / Essbereich mit offener Küche und Zugang zur Terrasse mit Gartenanteil bis hin zum Schlafzimmer, Büro und zusätzlichen Abstellräumen – jede Ecke dieser Einheit ist darauf ausgelegt, mehere individuellen Bedürfnisse zu erfüllen. Der Garten und die Terrasse befinden sich im Gemeinschaftseigentum.
Die offene Treppe führt Sie in das Untergeschoss, das perfekt als Gewerbeteil genutzt werden kann. Ob Atelier, Büro oder sogar eine Kindertagesstätte, welche ursprünglich geplant war. Die vielseitigen Nutzungsmöglichkeiten machen diese Einheit zu einem wahren Juwel. Zusätzliche Annehmlichkeiten wie eine kleine Teeküche und ein Duschbad mit WC bieten weiteren Komfort und Flexibilität.
Derzeitige Nutzung der Fläche im EG als Wohnung. Die Nutzung zum Wohnen ist in der Teilungserklärung erlaubt. Über eine offene Treppe gelangt man in das UG (Souterrain), Diese Treppe kann geschlossen werden, so dass beide Einheiten getrennt genutzt werden können, daher ist eine separate Vermietung der Gewerbefläche möglich. Zusätzlicher Stellplatz im Freien vor dem Gebäude (auf Gemeinschaftsfläche).
Lassen Sie sich diese einmalige Gelegenheit nicht entgehen und entdecken Sie das Potenzial dieser außergewöhnlichen Immobilie im Herzen des Heusteigviertels. Vereinbaren Sie noch heute einen Besichtigungstermin und lassen Sie sich von der Vielfalt und dem Charme
dieses einzigartigen Objektes begeistern!
Das Hausgeld beträgt: 1030.00 €
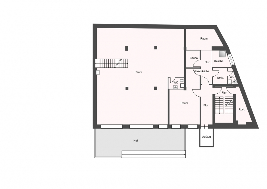
Erdgeschoss: ca 208 m²:
Aktuell finden Sie im Erdgeschoss eine große, flexibel nutzbare Fläche vor. Alle Räume sind in Trockenbauweise gestaltet, was eine individuelle Neugestaltung und Raumaufteilung ermöglicht. Derzeit umfasst das Erdgeschoss folgende Räumlichkeiten:
- Schlafzimmer
- Abstellraum
- Büro
- großzügiger Wohn / Essbereich
- offene Küche mit Tresen
- Zugang zur Terrasse mit Gartenanteil (befinden sich im Gemeinschaftseigentum)
- Duschbad mit WC
- Gästetoilette
Souterrain: ca 129 m²:
Eine offene Treppe im Wohnbereich führt ins Souterrain, das als Gewerbeteil genutzt werden kann. Die Treppe kann geschlossen werden, so dass beide Einheiten getrennt verwendet werden können.
Im Souterrain befinden sich zudem:
- Teeküche
- Duschbad mit WC
- Zugang zur Terrasse 21 m² auf Gemeinschaftsfläche
- Zugang auch von außen möglich
- Personenaufzug außen am Gebäude
- Lastenkran außen
- 1 Stellplatz in der TG, Vierfachparker oben links
Ein Personenaufzug ist außen angebracht. Ein Lastenaufzug, erleichtert den Transport von schweren Gegenständen.
Wohnökologie und Wohnhygiene:
Besonderer Wert wurde auf ökologische und gesundheitliche Aspekte gelegt.
Parkettböden:
Im gesamten Wohnbereich wurden Parkettböden verlegt, um die Hausstaubbelastung zu reduzieren. Diese Böden bestehen aus Stablamellenparkett und sind mit einer wasserhärtenden Versiegelung versehen.
Elektro-Nachtfreischaltung:
In den Schlafräumen sorgt eine Elektro-Nachtfreischaltung für die Vermeidung elektrischer Felder.
Wohngiftfreie Baustoffe:
Gezielt wurden nur wohngiftfreie Baustoffe verwendet.
Fenster:
Kiefernholzfensterprofile mit Isolierverglasung tragen zur Energieeffizienz bei.
Niedertemperaturheizung mit Strahlungsheizkörpern:
Diese Heizung vermindert die Konvektionsluftbewegungen und damit die Staubaufwirbelung. Die Heizkörper sind an den Innenwänden aufgestellt, um Wärmeverluste zu minimieren.
Außenwände:
Teilweise aus Ziegelmauerwerk mit einer Mindeststärke von 24 cm.
Heizung:
Das Gebäude wird durch ein Blockheizkraftwerk beheizt.
Für Sicherheit sorgen elektrische fahrbare Schutzgitter. Alle Räume sind in trockenbauweise.
Es liegt ein Energieverbrauchsausweis vor.
Dieser ist gültig bis 18.6.2028.
Endenergieverbrauch beträgt 153.00 kwh/(m²*a).
Wesentlicher Energieträger der Heizung ist Erdgas leicht.
Das Baujahr des Objekts lt. Energieausweis ist 1994.
Die Energieeffizienzklasse ist E.
Die Vermarktung des Objektes erfolgt im Rahmen eines Gemeinschaftsgeschäftes mit Corina Klamann Immobilien Stuttgart.
Das Heusteigviertel, zentral gelegen in Stuttgart, ist ein beliebtes und lebendiges Wohngebiet, das durch seinen einzigartigen Charme und seine hervorragende Infrastruktur besticht. Die historische Bausubstanz im Stil der Gründerzeit und des Jugendstils verleiht dem Viertel einen besonderen Charakter.
Im Heusteigviertel finden Sie eine Vielzahl von kleinen Läden und Lebensmittelgeschäften, sowie Apotheken und Drogerien.
Das Viertel ist bekannt für seine Vielzahl an Cafés, Bistros und Restaurants, die eine breite Palette an kulinarischen Angeboten bereithalten.
Ebenso Fitnessstudios und Sporteinrichtungen: Fitnessstudios, Yoga-Studios und andere Sporteinrichtungen sind ebenfalls gut vertreten.
Wochenmarkt: Ein wöchentlicher Markt bietet frische Lebensmittel, Blumen und andere regionale Produkte.
Anbindung an das öffentliche Verkehrsnetz:
Das Heusteigviertel verfügt über eine exzellente Anbindung an das öffentliche Verkehrsnetz. U-Bahn: Die U-Bahn-Stationen Österreichischer Platz (U1, U14) und Marienplatz (U1, U9, U34) bieten eine direkte Verbindung ins Stadtzentrum und zu anderen wichtigen Knotenpunkten.
Bus: Mehrere Buslinien bedienen das Viertel, darunter die Linien 41 und 43, die schnelle Verbindungen zu nahegelegenen Stadtteilen und wichtigen Verkehrsknotenpunkten bieten.
S-Bahn: Der S-Bahnhof Stadtmitte ist ebenfalls in der Nähe und ermöglicht schnellen Zugang zu den S-Bahn-Linien S1, S2, S3, S4, S5 und S6, die eine direkte Verbindung zu den umliegenden Städten und dem Flughafen Stuttgart bieten.
Straßenbahn: Die Straßenbahnlinie 10 ist ebenfalls gut erreichbar und erweitert die Mobilitätsmöglichkeiten innerhalb der Stadt.
Mehrere Schulen und Kindergärten befinden sich in unmittelbarer Nähe. Arztpraxen, Zahnarztpraxen und andere Gesundheitsdienstleistungen sind gut vertreten.
Zu Erholung und ebenso Freizeitgestaltung dient der nahegelegene Weißenburgpark und der Karlshöhe-Park. Das Heusteigviertel ist somit nicht nur ein architektonisches Kleinod, sondern auch ein äußerst praktischer und lebenswerter Ort, der seinen Bewohnern eine hohe Lebensqualität bietet.
Die dargestellte Position der Immobilie ist nur eine ungefähre Angabe.
Standort Waiblingen
Telefon: (07151) 966 58-0
Standort Fellbach
Telefon: (0711) 365 96 80-0
© Mergenthaler Immobilien AG 2026